Kontor, Holbergsgatan 164, 159 kvm, Blackeberg

Kommande kontor 159 m² – Blackeberg / Holbergsgatan 164

Kommande kontorslokal i Blackeberg, perfekt för verksamheter som söker en effektiv bas i Västerort med närhet till boendeområden och vardagsservice.

Lokalen omfattar 159 m². Hyra presenteras på förfrågan. Driftkostnader tillkommer för el, bredband och försäkring. Tillträde enligt överenskommelse. Våningsplan BV. Moms tillkommer. Kontakt Mats Odenlid.

Läget på Holbergsgatan 164 ger smidig vardag i Bromma med närhet till natur och lokala centrum. Information om kollektivtrafik, avstånd till tunnelbana/buss och parkeringsmöjligheter finns på gatan runt lokalen.

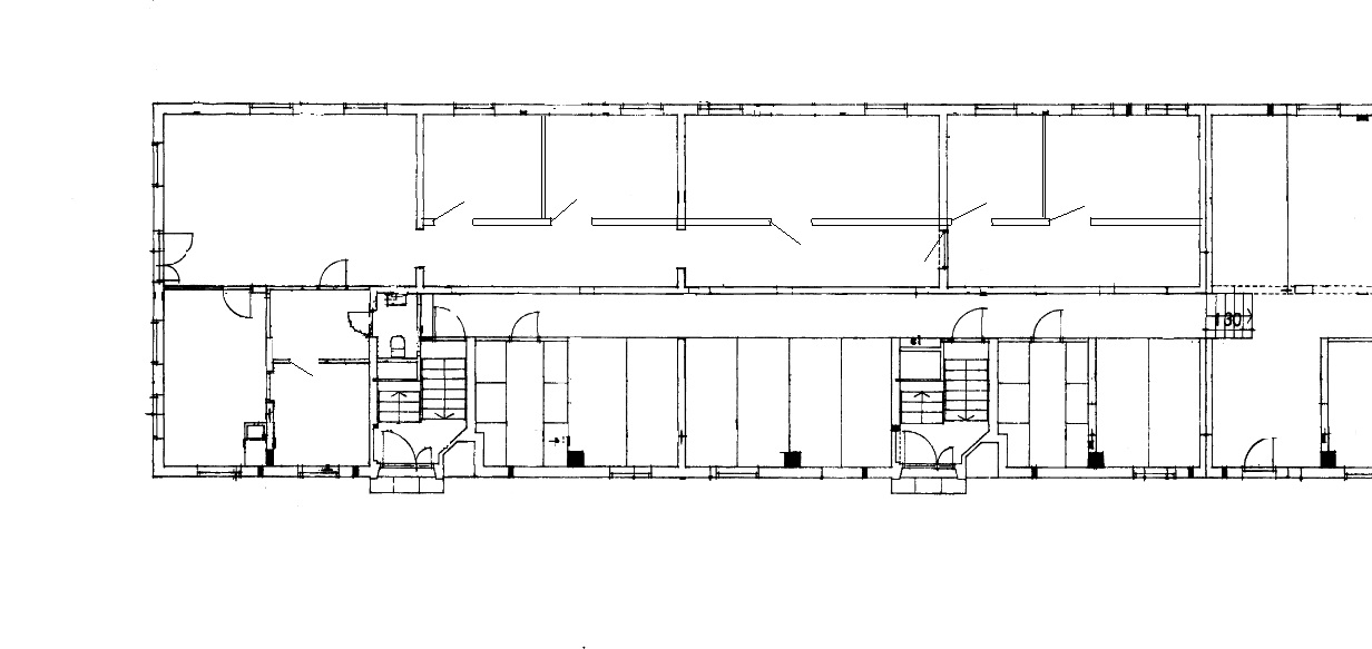
Planlösning och standard – Denna lokal passar perfekt till kontor med 6 mindre kontorsrum och möjlighet till ett eller flera mötesrum. Pentry och WC finns. Mötesrum och övrig utrustning (uppgift saknas). Möjlighet till viss anpassning efter behov finns.

 Eftersom er framtida arbetsplats ska uppgraderas och fräschas upp kan ni redan nu vara med och påverka både planlösning och ytskikt, så att arbetsplatsen verkligen speglar era behov.  

Boka visning eller skicka intresseanmälan till Mats Odenlid.

Laddar...

Fakta om lokalen

Stadsdel
Blackeberg
Adress
Holbergsgatan 164
Typ av lokal
Kontor
Storlek
159 kvm
Hyra
På förfrågan

Kontaktperson för visning

Svenska Bostäder
Mats Odenlid (08-508 368 38)

Anmäl intresse