Kontor, Grimstagatan 157, 131 kvm, Grimsta

Kontor 131 m² – Grimsta / Grimstagatan 157

Välplanerad kontorslokal i markplan med egen entré och smidig inlastning via garagedörrar till tillhörande förråd. Perfekt för service- och installationsföretag som söker kombinationen kontor och lager nära Vällingby C.

Yta 131 m². Årshyra 124 500 kr (exkl. värme och F-skatt), månadshyra 10 375 kr. Tillträde 2026-03-01. Våning bottenvåning. Ansvarig uthyrare Mats Odenlid.

Läget erbjuder cirka 500 meters gångavstånd till Vällingby Centrum med all tänkbar service, tunnelbana och bussterminal. God tillgänglighet för både personal och besökare. I området finns bra vardagsservice och närhet till större trafikleder via Västerort.

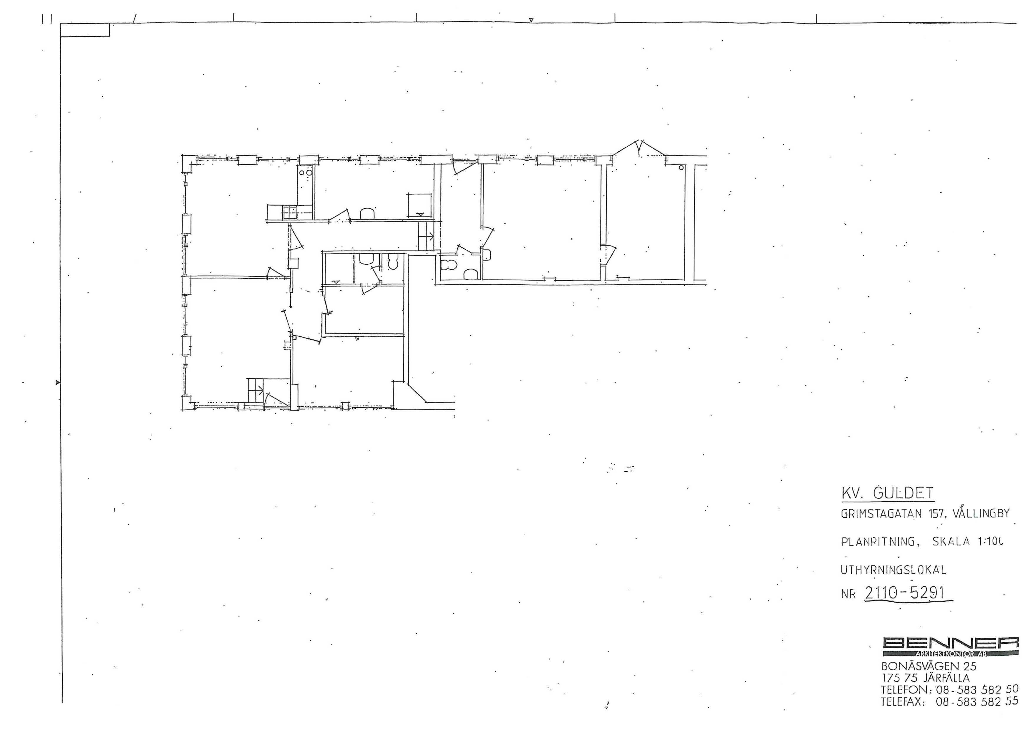
Planlösningen består av två större kontors-/mötesrum och två mindre arbetsrum, kök/pentry, dusch, två WC samt ett stort förråd med separat entré från gatan. Lokalen har bredband, gallerfönster och säkerhetsdörr. Lastport/direkt infart ger effektiv in- och utlastning. Egen ingång skapar en självständig och professionell adress för verksamheten.

Här finns plats för cirka 10–12 arbetsplatser och lokalen passar utmärkt för exempelvis bygg-, installations- och servicebolag eller hemtjänstverksamhet som behöver både kontorsytor och lättillgängligt lager/förråd. Två parkeringsplatser precis utanför entrén ingår i hyran.

Vissa bilder i annonsen kan vara digitalt redigerade för att visa lokalens potential - faktisk inredning och utseende kan skilja sig från bildmaterialet.

Boka visning eller skicka din intresseanmälan till Mats Odenlid för mer information.

Laddar...

Fakta om lokalen

Stadsdel
Grimsta
Adress
Grimstagatan 157
Typ av lokal
Kontor
Storlek
131 kvm
Hyra
10 375 kr / månad

Kontaktperson för visning

Svenska Bostäder
Mats Odenlid (08-508 368 38)

Anmäl intresse