Kontor, Gillerbacken 13, 59 kvm, Bandhagen
Kontor 59 m² – Rågsved / Gillerbacken 13
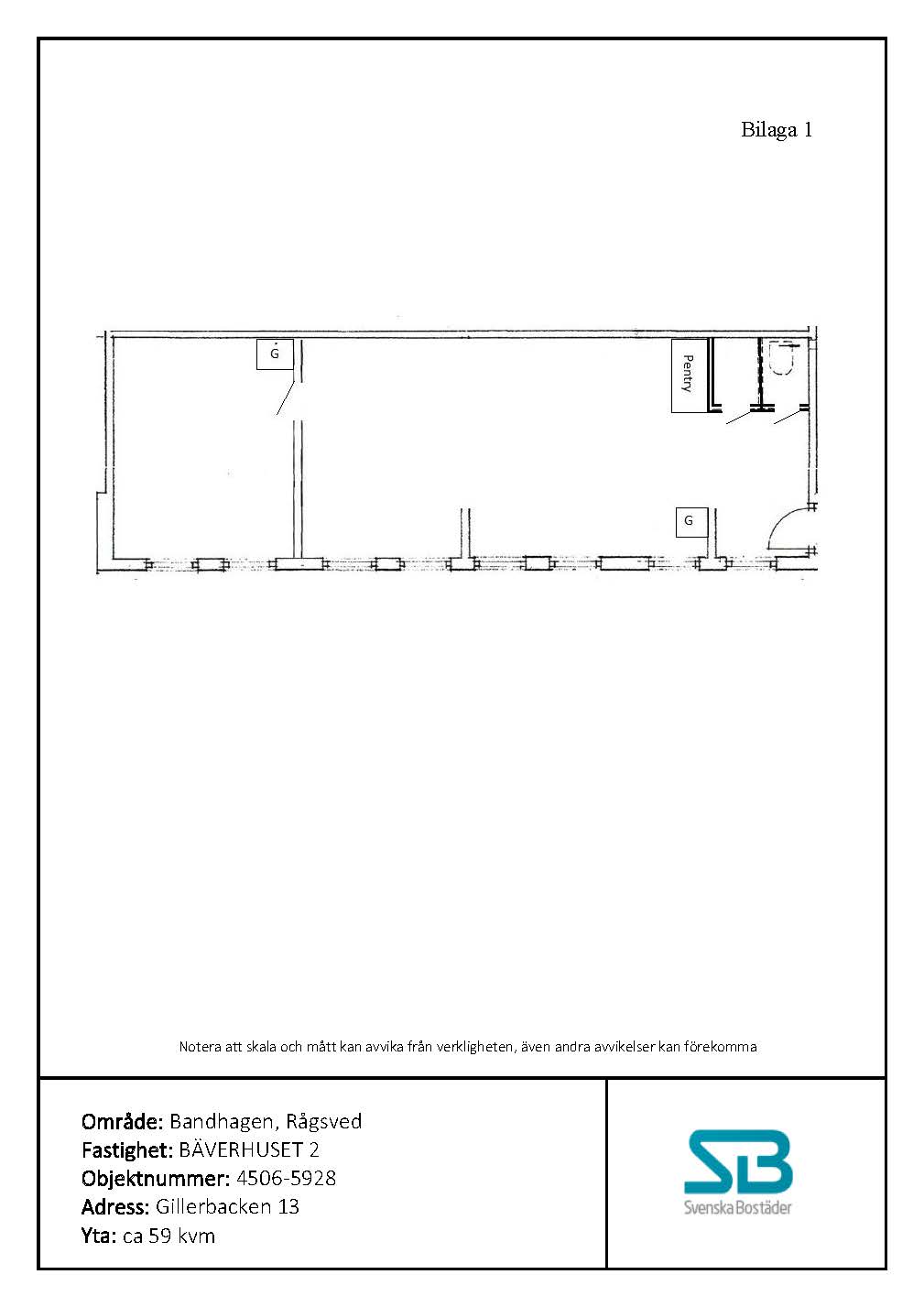
Ljus och effektiv kontorslokal i lugna Rågsved, perfekt för det mindre teamet som vill sitta ostört men ändå ha nära till kollektivtrafik. Öppen, flexibel planlösning och stora fönster ger en trivsam arbetsmiljö från dag ett.
Lokalen om 59 kvm på Gillerbacken 13, 124 64 Bandhagen, inom fastigheten Bäverhuset 2, benägen på bottenvåning (BV), hyrs ut för 10 817 kr/mån ex moms. Tillträde omgående. Driftkostnader tillkommer för el, bredband och försäkring.
Rågsved erbjuder ett rofyllt läge med god tillgänglighet i södra Stockholm. Hit tar du dig enkelt via tunnelbanans gröna linje samt flera bussförbindelser. Närservice och parkeringsmöjligheter finns i området.
Lokalen har en öppen och lättmöblerad planlösning som kan anpassas efter verksamhetens behov. De stora fönstren ger ett mycket bra ljusinsläpp och skapar en behaglig arbetsmiljö.
Boka visning eller skicka intresseanmälan till Jacob Emanuelsson.
 
                 
                 
                 
                 
                 
                Laddar...
Fakta om lokalen
- Stadsdel
- Bandhagen
- Adress
- Gillerbacken 13
- Typ av lokal
- Kontor
- Storlek
- 59 kvm
- Hyra
- 10 817 kr / mån
