Kontor, Varvsgatan 21, 100 kvm, Södermalm

Kontor 100 m² – Södermalm / Varvsgatan 21

Ljus och nymålad kontorslokal i hjärtat av Södermalm med smidig ingång via port på bottenplan. Perfekt för det lilla till medelstora företaget som vill sitta centralt med närhet till service och kommunikationer.

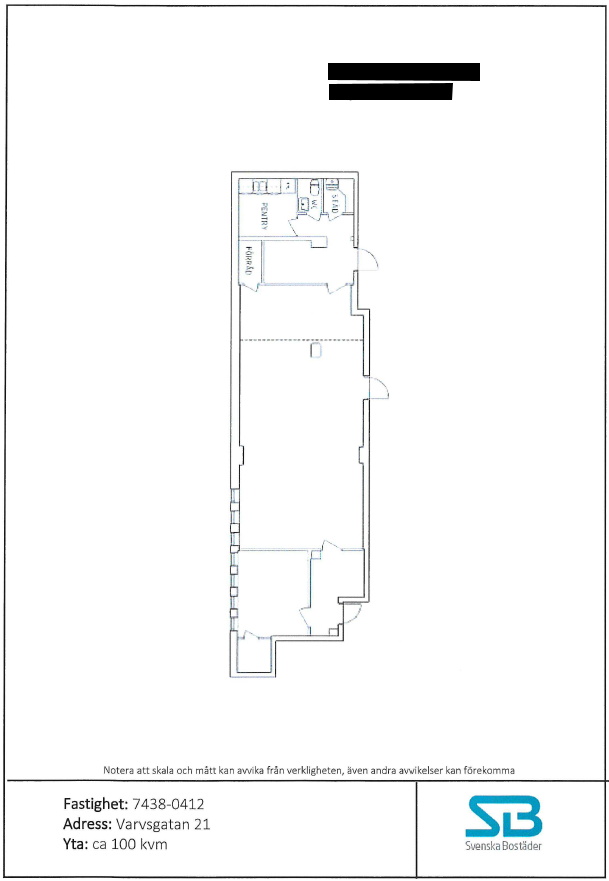
Lokalen omfattar cirka 100 m² med hyra 2 550 kr/m²/år. El, bredband och försäkring tecknas av hyresgäst. Kostnad för värme och vatten tillkommer. Tillträde enligt överenskommelse. Våningsplan BV. Kontakt: Bojan Babic. Tack vare entrén från gatuplan är det enkelt för både personal och besökare att ta sig in. Interiören är nyligen målad och ger ett rent, professionellt intryck från start.

Här sitter ni i ett attraktivt kvarter på Södermalm, omgivet av caféer, restauranger, gym och daglig service som förenklar arbetsdagen. Läget erbjuder goda kollektivtrafikmöjligheter och cykelavstånd till city, samtidigt som större leder nås på kort tid för den som pendlar.

Planlösningen lämpar sig för flexibel arbetsvardag med möjlighet att skapa öppna ytor eller diskreta rum efter behov. Fönster ger bra dagsljus och ett behagligt arbetsklimat. Ytan kan i dialog anpassas ytterligare för att matcha er verksamhet och arbetssätt.

Boka visning eller skicka en intresseanmälan till Bojan Babic för mer information och förslag på lösningar.

Vissa bilder i annonsen kan vara digitalt redigerade för att visa lokalens potential – faktisk inredning och utseende kan skilja sig från bildmaterialet.

Laddar...

Fakta om lokalen

Stadsdel
Södermalm
Adress
Varvsgatan 27
Typ av lokal
Kontor
Storlek
100 kvm
Hyra
21 250 kr / månad

Kontaktperson för visning

Komersiell uthyrare
Bojan Babic (08-508 372 94)

Anmäl intresse