Kontor, Tysta Gatan 18, 94 kvm, Östermalm

Kontor 94 m² – Östermalm / Tysta gatan

Välplanerat kontor i lugnt och eftertraktat kvarter nära Karlaplan. En trivsam arbetsplats med generösa ytor och god anpassningsbarhet för team som vill sitta centralt men ostört.

Lokalen omfattar 94 m² och erbjuds till en hyra om 31 333 kr / månad. Hyran anges exklusive moms, värme och fastighetsskatt. Tillträde enligt överenskommelse. Våning BV. För mer information och visning kontakta uthyrare Bojan Babic.

Tysta gatan 18 placerar er i Stockholms innerstad med kort promenad till Karlaplan. Här finns tunnelbana på röd linje, flera busslinjer längs Karlavägen och Valhallavägen samt god cykelaccess. I närområdet finns ett brett utbud av service som ICA Karlaplan, SATS, caféer och restauranger som Broms, liksom närhet till grönområden vid Gustav Adolfsparken och Gärdet. Garage finns i närliggande Garnisonen och gatuparkering finns i området.

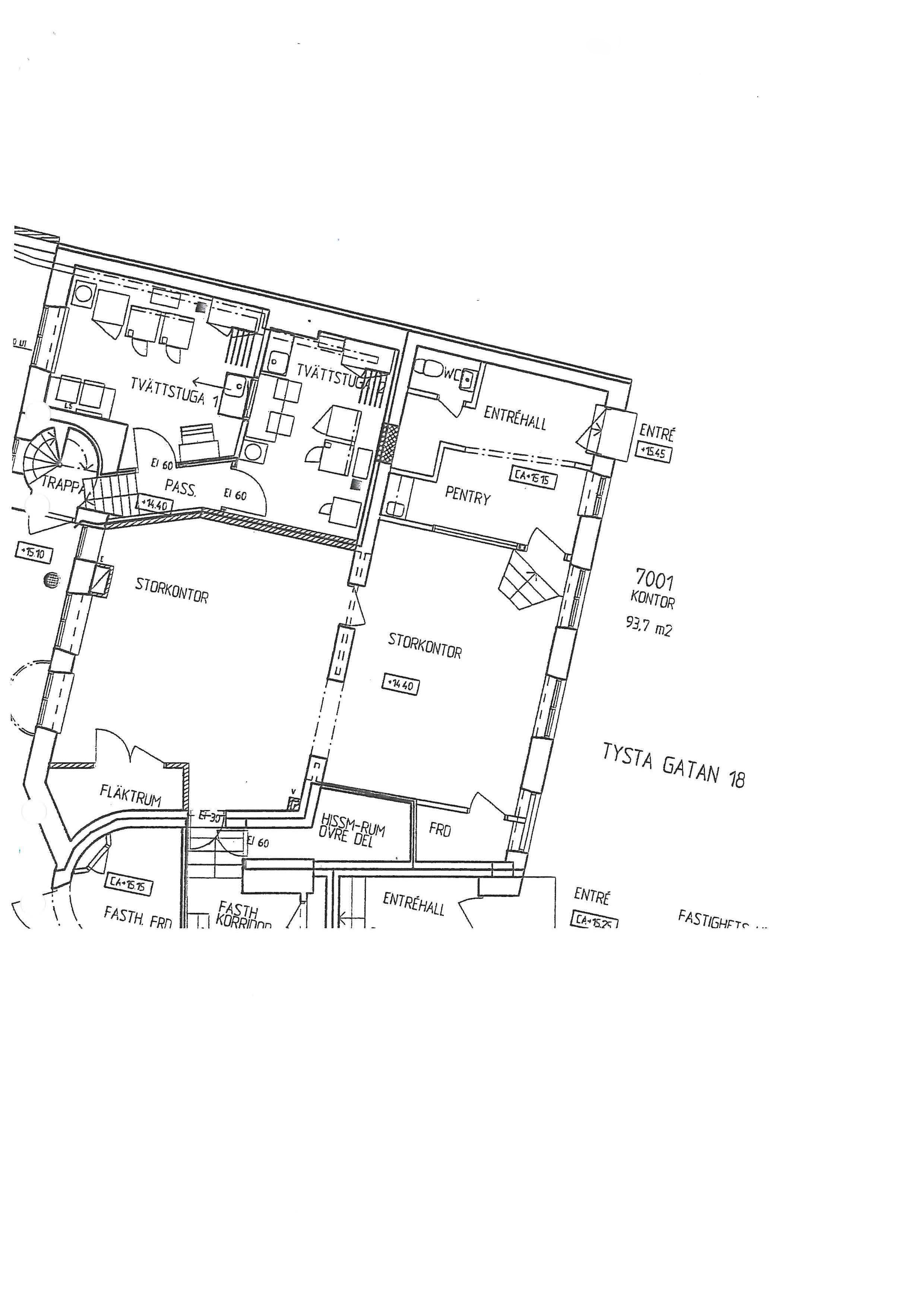
Planlösningen rymmer två större storkontorsytor med plats för öppna arbetsplatser och teamytor, entréhall med wc i anslutning samt pentry för fika och lunch. Stora fönster ger bra ljus och lokalen kan efter dialog anpassas för arbetsrum, mötesrum eller mer öppen layout beroende på behov.

Boka visning eller skicka intresseanmälan till Bojan Babic så berättar vi mer. 

Laddar...

Fakta om lokalen

Stadsdel
Östermalm
Adress
Tysta Gatan 18
Typ av lokal
Kontor
Storlek
94 kvm
Hyra
31 333 kr / månad

Kontaktperson för visning

Komersiell uthyrare
Bojan Babic (08-508 372 94)

Anmäl intresse