Kontor, Arvid Mörnes väg 1, 74 kvm, Blackeberg

Kontor/Showroom 74 m² – Blackeberg / Arvid Mörnes väg

Ljus hörnlokal i markplan med stora fönsterpartier och två egna entréer. Här får ni ett trevligt läge nära Blackebergs centrum – perfekt för det lilla kontoret, showroomet eller en butik med fokus på visning och möten.

Lokalen omfattar 74 kvm med månadshyra 10 013 kr (årshyra 120 155 kr). Tillträde  enligt överenskommelse. Belägen i bottenvåning med smidig access från gatan. Kontakt: Mats Odenlid.

Området erbjuder 5 minuters gång till Blackebergs tunnelbanestation och centrum med service, caféer och vardagsutbud. God tillgänglighet för kunder och medarbetare, parkering sker på gatan i direkt anslutning.

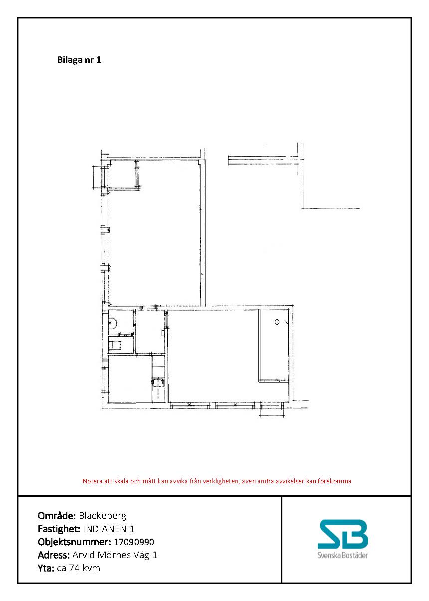
Planlösningen består av två rymliga kontorsrum/showrooms, pentry samt WC. Nyrenoverade ytskikt ger ett fräscht intryck och arbetsplatser för cirka 4–5 personer ryms bekvämt. Egen ingång, bredband och gallerfönster bidrar till funktion och trygghet. Lokalen lämpar sig för kontor/showroom eller butik utan livsmedel eller frisörverksamhet.

Boka visning eller skicka en intresseanmälan till Mats Odenlid för mer information.

Vissa bilder i annonsen kan vara digitalt redigerade för att visa lokalens potential - faktisk inredning och utseende kan skilja sig från bildmaterialet.

Laddar...

Fakta om lokalen

Stadsdel
Blackeberg
Adress
Arvid Mörnes Väg 1
Typ av lokal
Kontor / Showroom
Storlek
74 kvm
Hyra
10 013 kr / månad

Kontaktperson för visning

Svenska Bostäder
Mats Odenlid (08-508 368 38)

Anmäl intresse