Kontor, Friherregatan 34, 110 kvm, Hässelby
Kontorslokal – 110 kvm i Hässelby
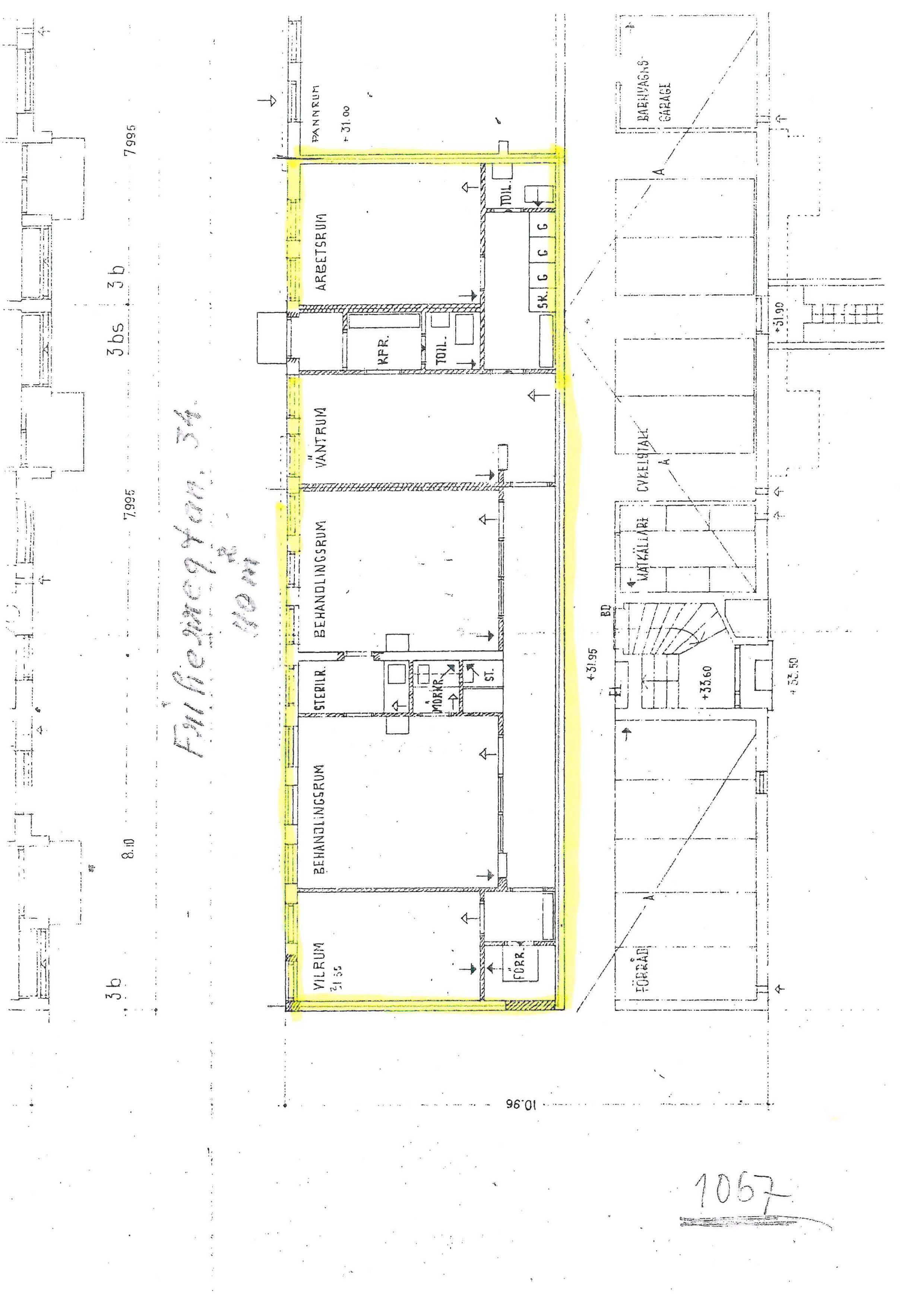
Ljus och välplanerad kontorslokal i markplan – med plats för 6–7 personer och närhet till centrum, service och tunnelbana
Adress & Område
Gatuadress: Friherregatan 34, 165 58 Stockholm
Stadsdel: Hässelby
Våningsplan: Bottenvåning (BV)
Lokalinformation
Lokaltyp/användning: Kontor
Total yta: 110 kvm
Planlösning: Två större rum, två mindre, WC och pentry – funktionell layout för mindre företag eller organisation
Skick: Bra skick – inflyttningsklart
Ekonomi
Månadshyra: 10 450 kr (exkl. moms)
Kvadratmeterhyra: 1 140 kr/kvm/år
Driftkostnader: El, bredband och försäkring tecknas av hyresgäst
Kommunikationer & Tillgänglighet
Kort gångavstånd till Hässelby Gårds centrum och tunnelbanestation
Bussförbindelser i området
Gatuparkering samt möjlighet till hyrd P-plats
Faciliteter och möjligheter
Lokalen passar för kontorsverksamhet med kundmottagning, förening eller annan mindre verksamhet som söker ett lättillgängligt och prisvärt läge i västra Stockholm.





Laddar...
Fakta om lokalen
- Stadsdel
- Hässelby
- Adress
- Friherregatan 34
- Typ av lokal
- Kontor
- Storlek
- 110 kvm
- Hyra
- 1140 kr / kvm / år