Kontor, Malmövägen 53, 60 kvm, Björkhagen C

Flexibel kontorslokal med skyltläge – 60 kvm i Björkhagen, Söderort

Adress och hyresinformation
Adress: Malmövägen 53, 121 53 Stockholm
Tillträde: Enligt överenskommelse
Hyra: 10 000 kr/månad (2 000 kr/kvm/år)
Fastighetsbeteckning: Duggregnet 5

Om lokalen
Yta: 60 kvm
Våningsplan: Bottenvåning
Typ: Kontorslokal
Status: Hyresledig

Läge och kommunikationer
Letar du efter en flexibel lokal med goda exponeringsmöjligheter? Nu finns chansen att etablera din verksamhet i Björkhagen C. Goda kommunikationer med direkt närhet till tunnelbana (gröna linjen). Lokalen lämpar sig för kontor och showroom.

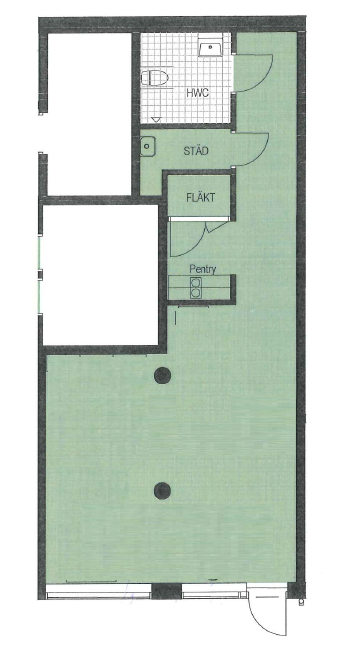
Planlösning
Lokalen har en öppen planlösning. Här finns även RWC, ett praktiskt pentry och stora skyltfönster som ger gott ljusinsläpp och utmärkta skyltmöjligheter mot förbipasserande kunder.

Parkeringsmöjligheter
Parkeringsmöjligheter finns i området.

Övrig information
Ovan angiven hyra är exkl. moms, värme och fastighetskatt. Hyresgästen tecknar eget abonnemang för el, försäkring och bredband. Lokalen hyrs ut endast till momspliktig verksamhet.
Vid intresse, skicka ett mail med verksamhetsplan där även organisationsnummer framgår till ert företag, så kommer ansvarig uthyrare att ta kontakt.

Laddar...

Fakta om lokalen

Stadsdel
Johanneshov
Adress
Malmövägen 53
Typ av lokal
Kontor
Storlek
60 kvm
Hyra
10 000 kr / mån

Kontaktperson för visning

Svenska Bostäder
Marsel Aybar (08-508 372 08)

Anmäl intresse